DAK Acélszerkezeti Kft

Portálok

 

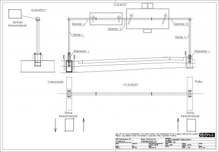
DU-PLA típusú portálszerkezet

 

du pla 0 previewA közutakon elhelyezésre kerülő útbaigazító táblákat tartó portálszerkezetek és konzolszerkezetek az évek során a szerkezeti kialakításukat tekintve folyamatosan változtak. A változást a folyamatosan növekvő forgalom generálta.

Kezdetben a tervezők a rácsos kialakítást választották, ennek előnye a nagy teherbírás, hátránya a bonyolult gyártás és telepítés, a nagy szerkezeti méret, a nagy méretű alaptest, nehezen kivitelezhető felületvédelem, helyszíni toldások.

Következő lépésként a rácsos szerkezetű tartót a téglalap keresztmetszetű acéllemezekből hegesztéssel előállított szelvénnyel váltották ki. Előnye a belföldről beszerezhető alapanyag, hátránya viszont a gyártási bonyolultság a nagy mennyiségű varrat-élelőkészítés és hegesztési varrat miatt. Később a tompa varratot kiváltotta a sarokvarrat, ezzel az élelőkészítés művelete szükségtelenné vált.

A nagyméretű és vastagfalú zártszelvények megjelenése a piacon lehetővé tette a hegesztett szelvény kiváltását. Ennek előnye a lekerekített sarkok, a kisebb méretű szerkezet és alaptest, hátránya viszont, hogy kizárólag importból beszerezhető az alapanyag, és a toldása és a varrat ellenőrzése nehezen kivitelezhető.

A több éves tapasztalatok alapján került kifejlesztésre a DU-PLA típusú portálszerkezet, amelynek legfőbb jellemzője a tartószerkezetének keresztmetszeti kialakítása. Ez melegen hengerelt acéllemezből hidegen hajlított lekerekített sarkú L-alakú szelvények összeforgatásából kialakított téglalap keresztmetszetű zárt szelvény. A téglalap keresztmetszet két átlós sarka hajlított, lekerekített, a másik két átlós sarka hegesztett.

Ez a kialakítás ötvözi az előző keresztmetszeti kialakítások előnyeit.

Műszaki előnyök:

  • a lekerekített sarkok a forgalom felőli oldalakon, csökkentve ezzel az esetlegesen bekövetkező balesetek esetén a személyi sérülések valószínűségét, és anyagi károk mértékét
  • a helyszíni illesztések száma csökkenthető a könnyen kivitelezhető és ellenőrizhető toldás miatt
  • a lecsökkentett keresztmetszeti méretek ellenére is biztosítható az előírásoknak megfelelő teherviselő képesség
  • esztétikusabb szerkezet

Gazdasági előnyök:

  • karcsúbb szerkezet, jelentős alapanyagtartalom-csökkenés
  • kisebb helyigényű alaptest, jelentős alapanyagtartalom-csökkenés
  • belföldről beszerezhető alapanyag

A fentiek alapján kijelenthető, hogy a DU-PLA típusú portálok keresztmetszeti kialakítása lehetővé teszi egy műszaki és gazdasági szempontból is kedvezőbb termék előállítását.


© 2026 DAK Acélszerkezeti Kft.